logo
家装案例库logo
南昌 【切换城市】
header-img

舒云

级别:主任设计师

毕业院校:湖南城市学院

从业年龄:4年

TA共43个案例

免费预约设计师

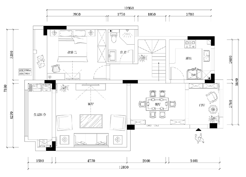
211200 五居 176㎡

铜锣湾香逸澜湾 新古典风格 南昌

此住宅位于湾里区香逸熙园;风格倾向定位为简约欧式,本案的设计重点,客厅以及餐厅空间互通与交流,从设计手法上采用了从墙面上的线与面的衔接呼应,以及顶面的空间的虚拟划分,达到各功能空间融会贯通的目的。简洁... 此住宅位于湾里区香逸熙园;风格倾向定位为简约欧式,本案的设计重点,客厅以及餐厅空间互通与交流,从设计手法上采用了从墙面上的线与面的衔接呼应,以及顶面的空间的虚拟划分,达到各功能空间融会贯通的目的。简洁低奢的欧风在本案中得到了淋漓尽致的体现。 展开

相似案例

img img img img img img img
loading

装修该花多少钱?提前算一算

装修计算器 今天已有1000位业主获取了装修预算

开始计算
近期设计师与您联系

您的装修预算

  • ?
  • ?
  • ?
  • ?
二维码
用小程序 随时随地看装修案例